2018/2019
création d’un jardin privé
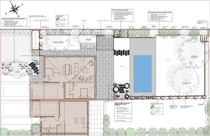
Etude de conception –
SURFACE : 600 m2
EQUIPE DE MAÎTRISE D’OEUVRE :
TERRAM Paysage (PAYSAGISTE DPLG et URBANISTE) MANDATAIRE
Le projet consistait en la création d’un jardin de style contemporain, épuré, où les espaces seraient avant tout simples d’entretien et permettant, malgré une surface relativement restreinte (parcelle de 600m2), la plantation d’arbres fruitiers et la création de deux potagers distincts. La conception des espaces est pensée dès l’entrée Nord de la maison et offre une arrivée où le végétal méditerranéen est tout de suite mis en exergue. Côté Sud, la plantation des arbres, les toiles tendues ainsi que la pergola sont autant de micros-espaces nouvellement pensés et créés afin de profiter du jardin dans sa globalité. Autant d’espaces de détente, plus ou moins ombragés, permettant de bénéficier du jardin à l’année. Dans un souci d’optimisation d’espace des grimpantes sont plantées le long des grillages en guise de séparation visuelle. Enfin, la création d’un jardin d’aromates et d’un potager vivrier apporte un aspect ludique et convivial au lieu, alliant l’utile à l’agréable où parents et enfants peuvent se retrouver pour jardiner.
Existant, un jardin à penser, une toile vierge à créer
projet



Perspective de projet 1




